設計說明:
紅的、綠的、黃的、紫的......縱使你萬千風華,我獨愛那一抹清雅。
業主喜歡明亮溫馨的氛圍,所以去繁從簡是我們的設計方向。
暖色的燈光烘托了幾分幸福之氣, 傍晚之際與家人相聚,更是一種精神的寄托。回歸現實,對于年輕的一代,生活不僅需要詩和遠方;也需要溫柔的親人陪伴。
設計亮點:
1.原主臥套房空間略顯小氣,衣帽間偏小,且床尾方向視線有阻擋,所以我們首要改變了床頭的位置,但這個時候就需要避免與進門走廊的造型干擾,所以我們設計了一個造型衣柜,既可以掛一些隨手換下的貼身衣物,又可以使背景墻的造型更獨立。
2.減少一個房間并進行空間的重新規劃,增大了主臥的面積,營造高品質的空間感。并合理設計了衣帽間和主衛功能。使整個主臥分區清晰,舒適且大氣。
3.廚房空間偏小,儲物功能弱,本身采光弱的情況還阻擋了大面積的光源。首先,我們廚房通過陽臺空間的合并加大了使用面積,并設計了中西廚的功能增加吧臺功能,即滿足了客戶大量的廚房電器的空間,也提升了客戶的精致氛圍的感受。
項目地址:前程濱海花園
戶型: 四室及以上
裝修風格: 現代簡約
項目面積: 120㎡
設計費:¥216000
施工費:¥216000
原始戶型圖
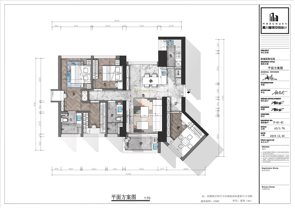
平面方案圖
客廳
客戶覺得,客廳的空間要大氣、通亮,使用整體的天花造型,使原本的兩個較小的客廳和餐廳區域整體劃一。電視背景墻利用視覺納入的手法,弱化了走廊通道并進整體的造型之中。使用少量的元素,呈現更開闊的空間意境。將清新卻不失典雅的原木色與現代元素結合在一起,以現代人的審美和功能需求打造簡單實用的空間。

主臥
主臥以簡約的現代元素為脈絡,直紋的原木材質和暖白的軟包色調延續了空間元素的統一性,簡單的線條依然遵循著去繁從簡的原則,采用略深的暖色床中和一下空間的色彩比例,使人的視覺感更加舒服。

兒童房
這是為客廳考慮的拓展設計,現有的空間設計成長輩房的功能,后期通過簡單的修改即可以煥然一新,成為兒童的樂園。把單調的床加上布藝的窗幔造型,守護這每一個寶寶美麗的夢境。
父母房
書房
我們利用開放格的線條從門廳鞋柜延伸到多功能房的書柜,空間之間的連續營造了簡約統一的空間氛圍,成為入門空間一大亮點。
衣帽間
衛生間

陽臺
0755-83333299
莫川裝飾集團總部 :南山區華潤前海大廈A座23層
深圳福田設計院 :福田區卓越世紀中心4號樓506-507室
莫川蛇口設計院 :南山區蛇口招商局廣場24樓EF
深圳龍華設計院 :龍華區安宏基天曜廣場1棟A座12層E
深圳深灣設計院 :南山區后海片區卓越后海中心2509-2510
深圳寶安設計院 :深圳市寶安區前海科興科學園1棟806
莫川香港設計院 :香港中環皇后大道中16-18號新世界大廈14層
莫川主材定制展廳:南山區高新北二道16號清溢光電大廈4樓
Copyright@ 2015-2017 深圳市莫川建筑空間設計有限公司 版權所有 網站地圖 粵ICP備17082150號 粵公網安備 44030402000770號