設計說明:
業主作為一個IT從業者,平時工作較忙,我們希望為客戶營造出一個優雅舒適的氛圍,從繁忙的工作中回到家,能放下所有的工作壓力,感受雅致的品質生活,材質選擇上也挑選了易于打理的仿木地磚、皮質沙發等,使一個人的居家生活愜意自在。
設計亮點:
廚房、公衛空間較小,餐廳采光偏弱。通過原生活陽臺的改造,擴大了廚房的操作空間。同時增加了公衛的使用面積。實現干濕分區的布局。通過改造廚房的隔墻,也使整個廚房更通透,并改善了餐廳的自然采光問題。
項目地址:前程濱海花園
戶型: 三室
裝修風格: 現代簡約
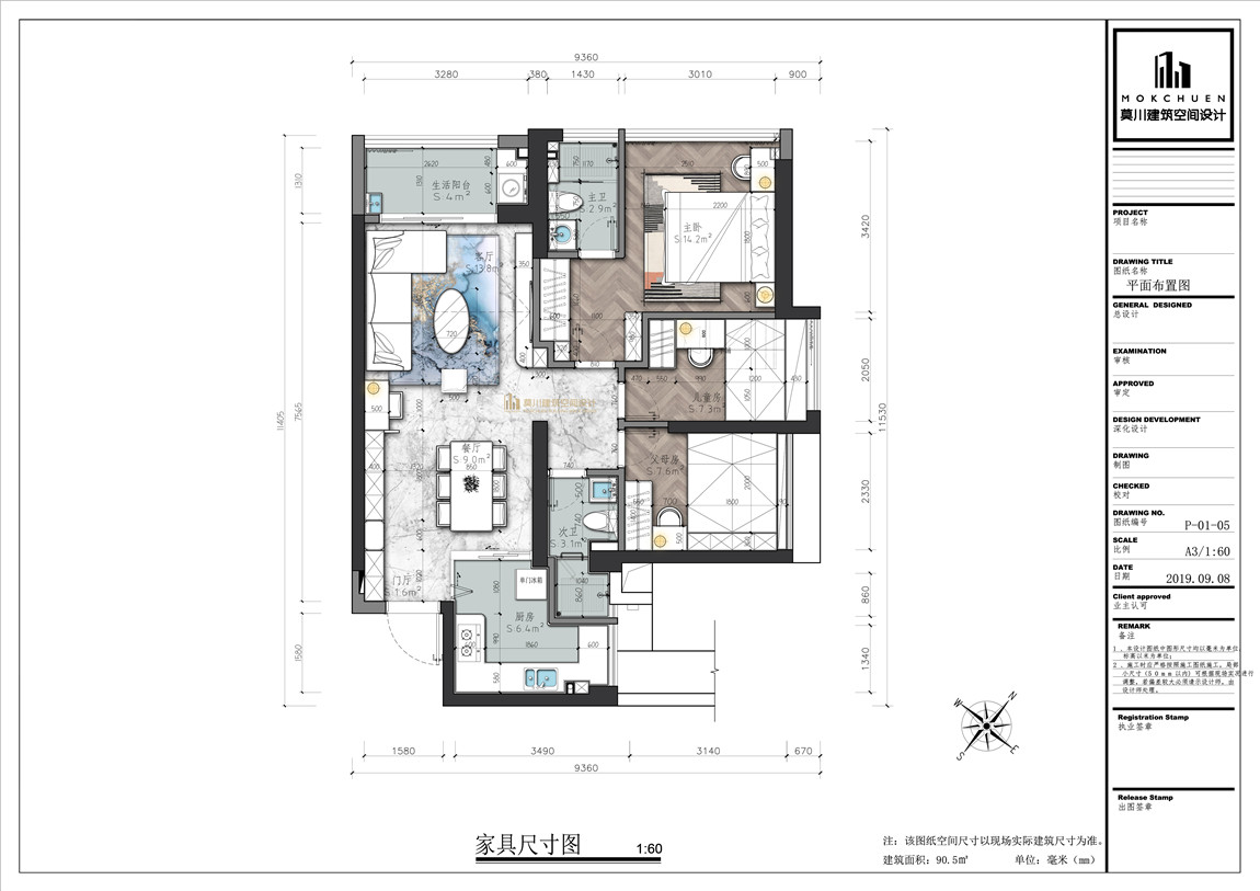
項目面積: 90.5㎡
設計費:¥0
施工費:¥162900
原始戶型圖
平面方案圖
客餐廳
轉交沙發與單椅形成的半圍合休閑區,工藝精良的皮質沙發,具有設計感的背景裝飾畫,在這里承載著或是與家人的溫馨陪伴,亦或是與朋友的直抒胸臆。壁龕中我們放置綠植、現代雕塑等飾品,喚醒了空間的生命力,給予忙碌了一天后歸家的你一份舒適柔軟的慰藉。

主臥
看慣了從北歐的清新系家裝,這種素雅深邃的調調,反而給主臥空間注入不一樣的氣質和高級感:靜謐而紳士。更具觸感和人情味的布藝,清風輕撫的白紗,都能迅速讓空間回溫,原本簡約的嚴肅的格調,也變得溫柔似水。
兒童房
業主不喜歡壓抑的空間,希望未來的寶寶空間更開闊。靠窗布置大床,留給充足的睡眠空間,書桌和衣柜的連體設計,使儲物空間和寶寶長大學習的空間同時實現了。好的設計,就該讓空間隨著主人一起成長。
老人房
老人房空間比較緊湊,我們采用榻榻米的形式,增加了儲物的同時,也盡可能的節省空間,增大活動區域。因為有小侄子會階段性跟隨父母居住,也設計了兒童的元素。提升活躍氣氛。
衛生間

0755-83333299
莫川裝飾集團總部 :南山區華潤前海大廈A座23層
深圳福田設計院 :福田區卓越世紀中心4號樓506-507室
莫川蛇口設計院 :南山區蛇口招商局廣場24樓EF
深圳龍華設計院 :龍華區安宏基天曜廣場1棟A座12層E
深圳深灣設計院 :南山區后海片區卓越后海中心2509-2510
深圳寶安設計院 :深圳市寶安區前海科興科學園1棟806
莫川香港設計院 :香港中環皇后大道中16-18號新世界大廈14層
莫川主材定制展廳:南山區高新北二道16號清溢光電大廈4樓
Copyright@ 2015-2017 深圳市莫川建筑空間設計有限公司 版權所有 網站地圖 粵ICP備17082150號 粵公網安備 44030402000770號