設計靈感及設計整體思路:
整個設計的思路是通過從跟業主溝通的這么長時間里了解到,他們一家子白天都再工作,只有晚上才會呆在家里。所以想把他們在家里的寶貴時光給留住和記錄下來,同時他們一家人都是非常的開朗愛笑的人,那么我們的設計就從色彩上的跳動性,不要那么死板的顏色多采一點的去做搭配,同時材質的搭配用花紋飽滿的大理石跟金屬玻璃還有皮質的組合去搭配。調整好材質之間的比例關系,使整個空間更加的活躍豐富飽滿。
需求:多的儲物,客餐廳要整個空間看起來能夠明亮大氣,要顯高端,二樓的臥室柜體需要用木板進行制作,不要太通透,同時也不要太古板要符合現代,多功能房要能夠多變,能夠變成兒童房的配置。次臥的話前期保留客房的需求但是要有書桌工作和儲物的需求。主臥女業主想要玻璃的通透感和亮晶晶的感覺。
項目地址:香港市上九肚山豪宅區天衍
戶型: 別墅會所
裝修風格: 現代簡約
項目面積: 326㎡
設計費:¥150000
施工費:¥1000000
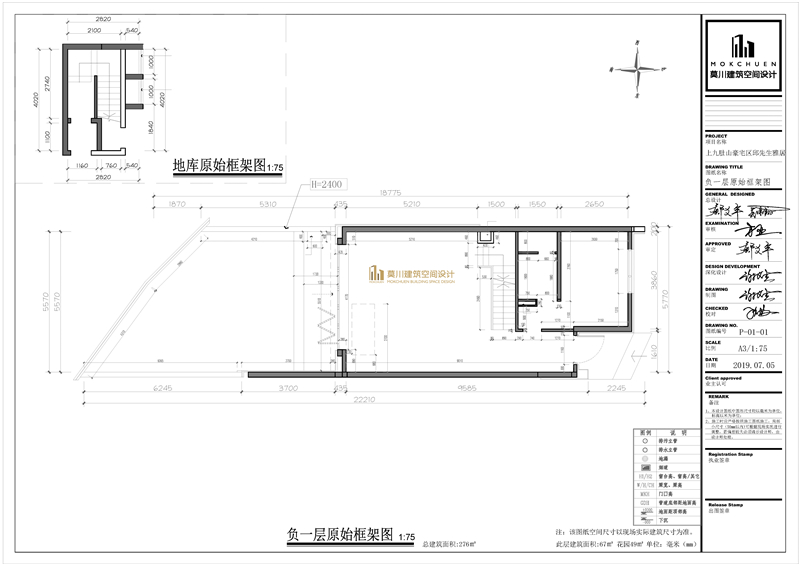
原始戶型圖:




原始戶型問題及解決方案:
原始的一樓客餐廳面積同時放餐廳跟客廳的功能區是不夠使用的所以我們把一樓的客廳推出去一部分在花園的地方進行搭建處理。這樣整個客餐廳的面積就足夠進行使用。
二樓的臥室區域面積也不夠進行衣柜區的設計,我們把墻體偏移到多功能房偷出一個衣柜的面積給到臥室進行使用,這樣臥室的舒適度才足夠,使用起來才會便利。
三樓的主臥我們把進門的方向進行了修改,使整個主臥的背景墻能夠完整大氣,床尾面對的方向是大大的落地窗,風景優美。在墻體的一側我們進行了整面墻體的衣柜處理區進行制作,同時進門的地方衣柜的柜門我們采用實門不通透的,在睡房區域的柜體我們采用玻璃進行柜門的制作,遵從業主的喜好外同時也是柜體的造型分割。
平面布置方案:




各空間效果及手繪圖
客廳
一樓的電視背景墻我們采用了紋理較花的大理石進行整面的設計凸顯出整個客餐廳的格調外,也能進行儲物,整面電視背景墻我們是結合鞋柜進行的制作。

沙發背景墻我們同樣也是根據現場有的柱體進行的儲物背景墻設計,整個塊面進行轉角做到負一樓的門的位置,使空間有一個延伸感。

主臥
主臥的吊頂疊級結合現有的梁位進行的多層疊級處理,這樣會使空間的縱深感拉強同時床頭背景我們去做了個硬包造型結合石材與金屬的這樣一個搭配兩相結合更加彰顯出主臥的豪華感。

次臥
次臥的背景墻原有的一部分是窗戶我們把背景的造型做成格柵狀,增加空間的造型感,同時結合業主的喜好我們做的非常的現代前衛加上燈管的效果更加突出該空間的一個氛圍感,更加的年輕,活躍。

次臥2

陽臺

玄關

書房

樓梯間

露天陽臺

陽臺

0755-83333299
莫川裝飾集團總部 :南山區華潤前海大廈A座23層
深圳福田設計院 :福田區卓越世紀中心4號樓506-507室
莫川蛇口設計院 :南山區蛇口招商局廣場24樓EF
深圳龍華設計院 :龍華區安宏基天曜廣場1棟A座12層E
深圳深灣設計院 :南山區后海片區卓越后海中心2509-2510
深圳寶安設計院 :深圳市寶安區前??婆d科學園1棟806
莫川香港設計院 :香港中環皇后大道中16-18號新世界大廈14層
莫川主材定制展廳:南山區高新北二道16號清溢光電大廈4樓
Copyright@ 2015-2017 深圳市莫川建筑空間設計有限公司 版權所有 網站地圖 粵ICP備17082150號 粵公網安備 44030402000770號