設計靈感及設計整體思路:
對于業主來說,是第一次裝修,真正意義上屬于一家三口的家,想讓孩子可以在房子里面自由活動空間大,不會磕磕碰碰。男業主是平面設計師,所以想要一間獨立的工作間可以讓他安靜思考。
設計師說:
業主屬于是第一次裝修房子,雖然是會計,但是有一顆屬于設計師的靈魂。第一次見面的時候,就整理了一份電子檔的裝修須知,里面是她的一些需求和想法,足足有4頁紙,有點把我驚訝到。然后方案也是溝通了很久,時常會有新的點子冒出來,然后問意見。我會幫她綜合分析,可能業主想法太多的話,過程中可能會偏離她原本的初衷。所以說要去梳理她的整個想法,權衡各種利弊,最終確定下來了一個最終方案。整體的空間色彩也是以簡單,自然,帶一下小孩子會喜歡的黃色,綠色在其中。讓小孩子愛上在家里的感覺。
項目地址:咸寧市天潔
戶型: 復式
裝修風格: 北歐風格
項目面積: 240㎡
設計費:¥72000
施工費:¥450000


戶型問題及解決方案
原始樓梯位置尷尬,進到餐廳區域位置擁堵,動線不是很順暢。然后房間太多,不需要太多無必要空間。所以在設計過程中,把樓梯的位置放在電視背景墻后,在拆掉客廳后面那間房間,做成了一個開放式書房及鋼琴演奏區,這樣既可以增加空間的通透感,又能讓餐廳動線更加流暢。
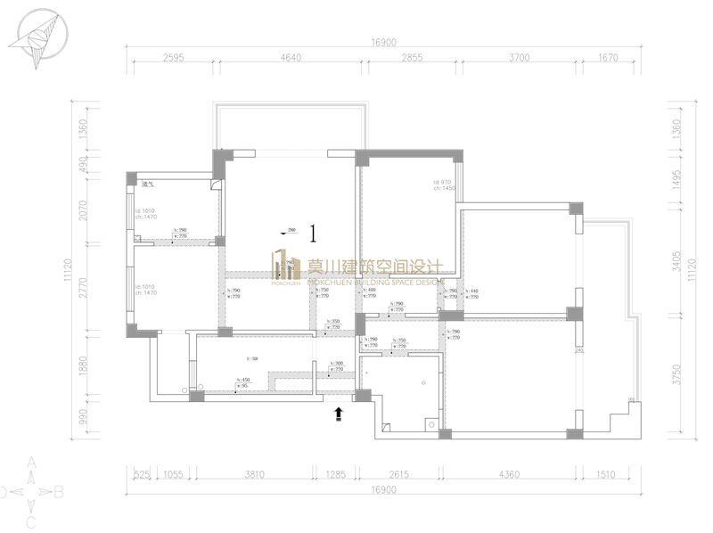
平面布置方案


空間效果及手繪示意
餐廳

客廳

客廳

臥室

0755-83333299
莫川裝飾集團總部 :南山區華潤前海大廈A座23層
深圳福田設計院 :福田區卓越世紀中心4號樓506-507室
莫川蛇口設計院 :南山區蛇口招商局廣場24樓EF
深圳龍華設計院 :龍華區安宏基天曜廣場1棟A座12層E
深圳深灣設計院 :南山區后海片區卓越后海中心2509-2510
深圳寶安設計院 :深圳市寶安區前海科興科學園1棟806
莫川香港設計院 :香港中環皇后大道中16-18號新世界大廈14層
莫川主材定制展廳:南山區高新北二道16號清溢光電大廈4樓
Copyright@ 2015-2017 深圳市莫川建筑空間設計有限公司 版權所有 網站地圖 粵ICP備17082150號 粵公網安備 44030402000770號