整體思路:
男女業主處于甜蜜戀愛期,準備結婚,這套房子也是兩人的愛巢,所以對它有很多浪漫的想法,那么設計師就是要滿足業主心里的浪漫期待,同時兼顧實用功能,好看又好用。
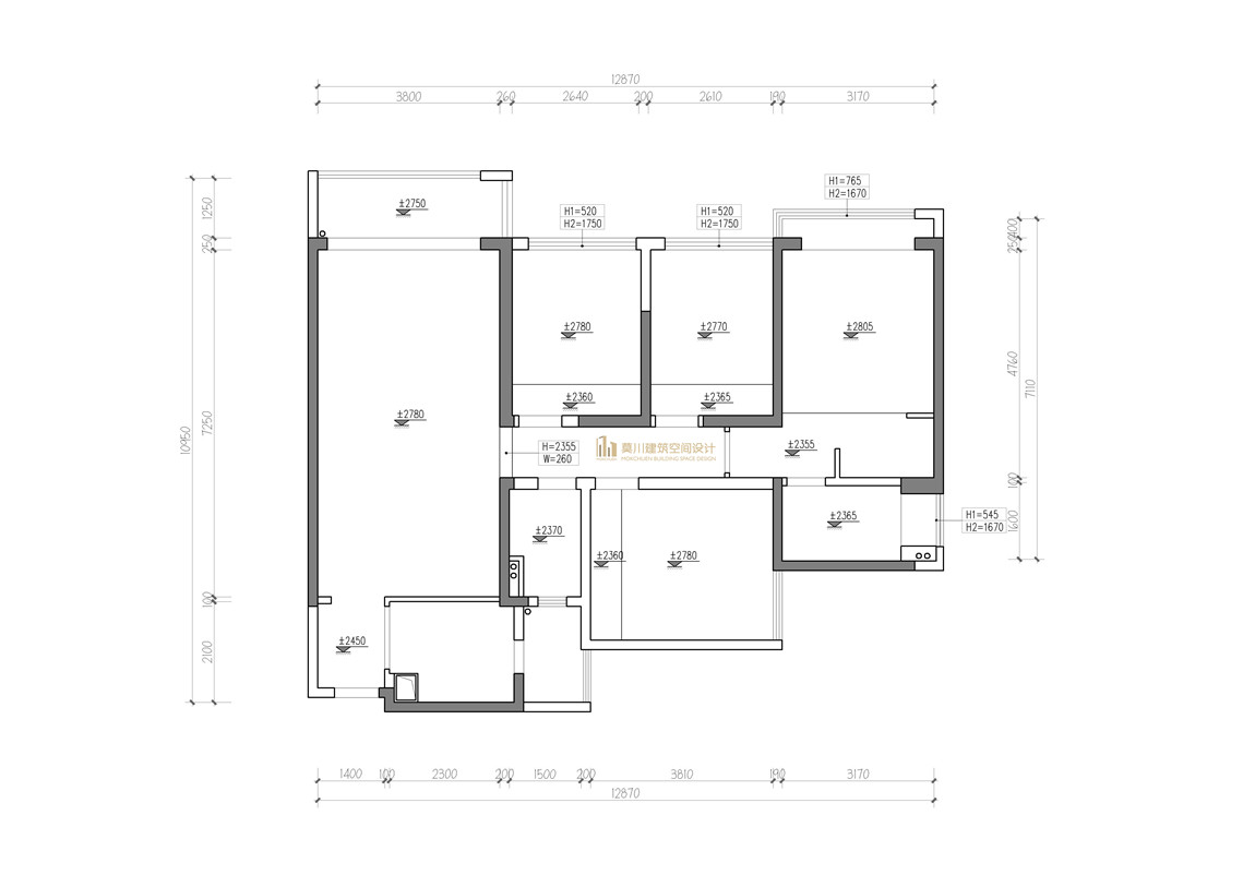
設計亮點:
精裝房,戶型本身結構改造不大,在不動大格局的前提下,讓空間分布更加合理。現場空調吊頂非常低,通過吊頂及石膏線的跌級設計,弱化吊頂深度,讓空間更有層次感和特色,反而成為空間特色。
項目地址:龍光玖龍璽
戶型: 四室及以上
裝修風格: 法式
項目面積: 123㎡
設計費:¥49200
施工費:¥221400















0755-83333299
莫川裝飾集團總部 :南山區華潤前海大廈A座23層
深圳福田設計院 :福田區卓越世紀中心4號樓506-507室
莫川蛇口設計院 :南山區蛇口招商局廣場24樓EF
深圳龍華設計院 :龍華區安宏基天曜廣場1棟A座12層E
深圳深灣設計院 :南山區后海片區卓越后海中心2509-2510
深圳寶安設計院 :深圳市寶安區前海科興科學園1棟806
莫川香港設計院 :香港中環皇后大道中16-18號新世界大廈14層
莫川主材定制展廳:南山區高新北二道16號清溢光電大廈4樓
Copyright@ 2015-2017 深圳市莫川建筑空間設計有限公司 版權所有 網站地圖 粵ICP備17082150號 粵公網安備 44030402000770號