設計說明:
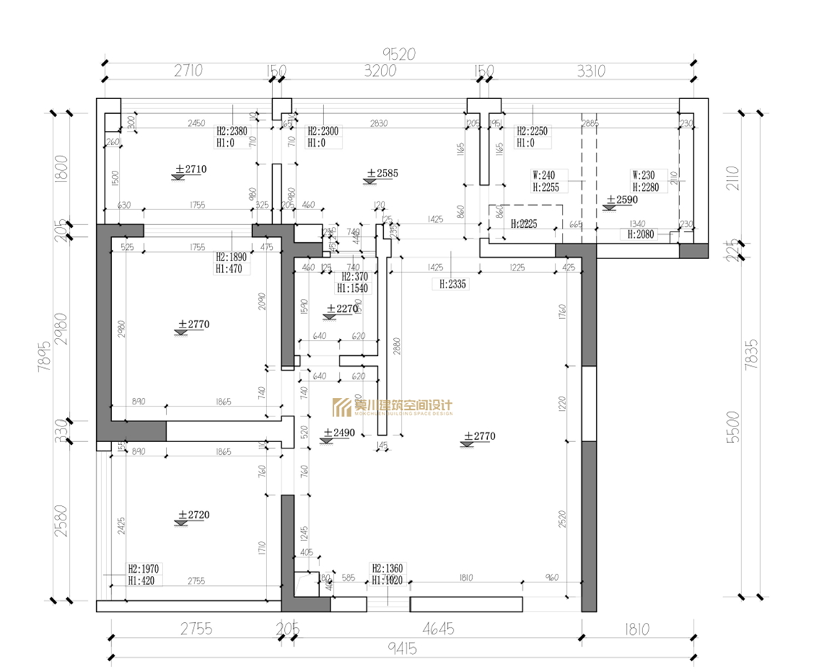
1.廚房小,采光差,操作臺面不夠,客廳太封閉,沒有餐廳。廚房改造成開放式廚房空間,和客廳一體。利用陽臺空間,把餐廳位置移到陽臺,實現就餐和辦公休閑為一體。
2.原來的主臥空間昏暗,把與之連接的陽臺打通,做成地臺床,主臥變成衣帽間,整體明亮又大氣。
項目地址:天健時尚空間
戶型: 二室
裝修風格: 現代簡約
項目面積: 75㎡
設計費:¥30000
施工費:¥140000







0755-83333299
莫川裝飾集團總部 :南山區華潤前海大廈A座23層
深圳福田設計院 :福田區卓越世紀中心4號樓506-507室
莫川蛇口設計院 :南山區蛇口招商局廣場24樓EF
深圳龍華設計院 :龍華區安宏基天曜廣場1棟A座12層E
深圳深灣設計院 :南山區后海片區卓越后海中心2509-2510
深圳寶安設計院 :深圳市寶安區前海科興科學園1棟806
莫川香港設計院 :香港中環皇后大道中16-18號新世界大廈14層
莫川主材定制展廳:南山區高新北二道16號清溢光電大廈4樓
Copyright@ 2015-2017 深圳市莫川建筑空間設計有限公司 版權所有 網站地圖 粵ICP備17082150號 粵公網安備 44030402000770號