設計說明:
元素上其實挺混搭的,復古風包容性挺強,工業的吧臺椅和軌道燈,美式的墻裙,休閑的燈具家私,以及金色的金屬小件遵守著空間秩序和比例,雜而有序,比較符合業主多元化的興趣愛好。顏色上用兩個深淺不一的綠色,沙發的姜黃色大膽撞色,營造出濃濃的懷舊風情。
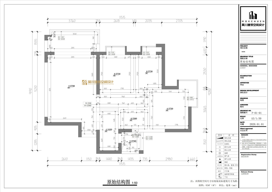
項目地址:豪方悠然居
戶型: 三室
裝修風格: 北歐風格
項目面積: 80㎡
設計費:¥32000
施工費:¥144000































































0755-83333299
莫川裝飾集團總部 :南山區華潤前海大廈A座23層
深圳福田設計院 :福田區卓越世紀中心4號樓506-507室
莫川蛇口設計院 :南山區蛇口招商局廣場24樓EF
深圳龍華設計院 :龍華區安宏基天曜廣場1棟A座12層E
深圳深灣設計院 :南山區后海片區卓越后海中心2509-2510
深圳寶安設計院 :深圳市寶安區前海科興科學園1棟806
莫川香港設計院 :香港中環皇后大道中16-18號新世界大廈14層
莫川主材定制展廳:南山區高新北二道16號清溢光電大廈4樓
Copyright@ 2015-2017 深圳市莫川建筑空間設計有限公司 版權所有 網站地圖 粵ICP備17082150號 粵公網安備 44030402000770號