設計說明:
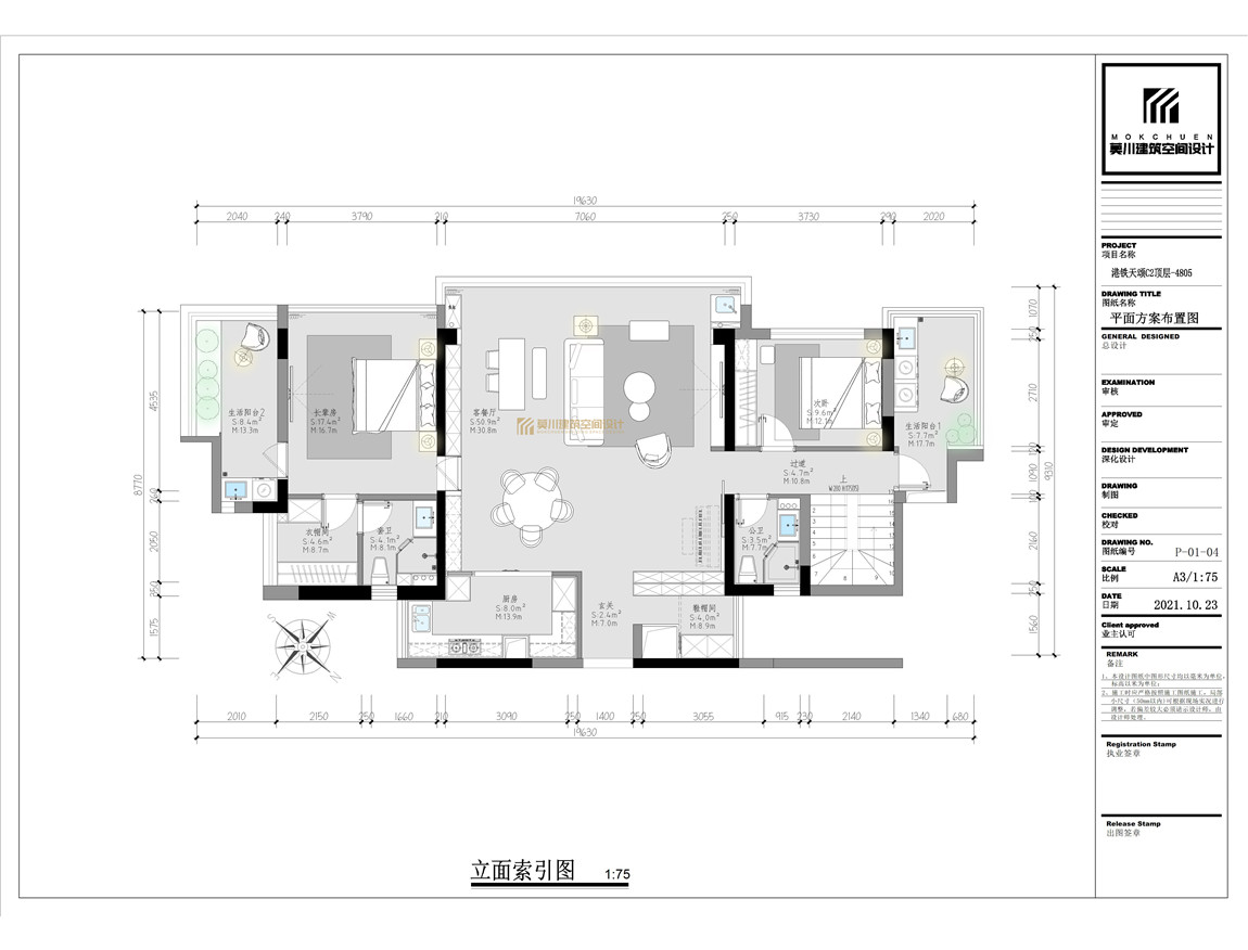
進門的搭建增加來廚房跟餐廳的面積,陽臺內包讓客廳更顯大氣,樓梯移到外面到搭建區,讓空間更加的合理利用也讓室內大大增加使用面積,將光線作為空間主要的元素,貫穿整體空間氛圍,為用戶打造具有歸屬感的心靈住所。進入客廳后,簡約輕奢的調性撲面而來,大面積的采光照亮了客廳區域,白色的基調讓空間雅致、溫潤,綠植的點綴令空間更為活躍和清新。廚房用餐區域沉穩而精致,簡單別致,從材質到顏色到裝飾,都融合得恰到好處,讓空間觀感和諧寧靜,透漏出沁人心脾的舒適感。
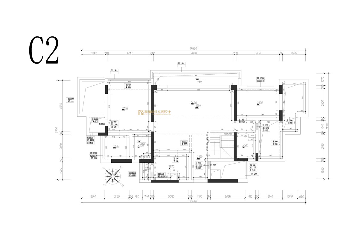
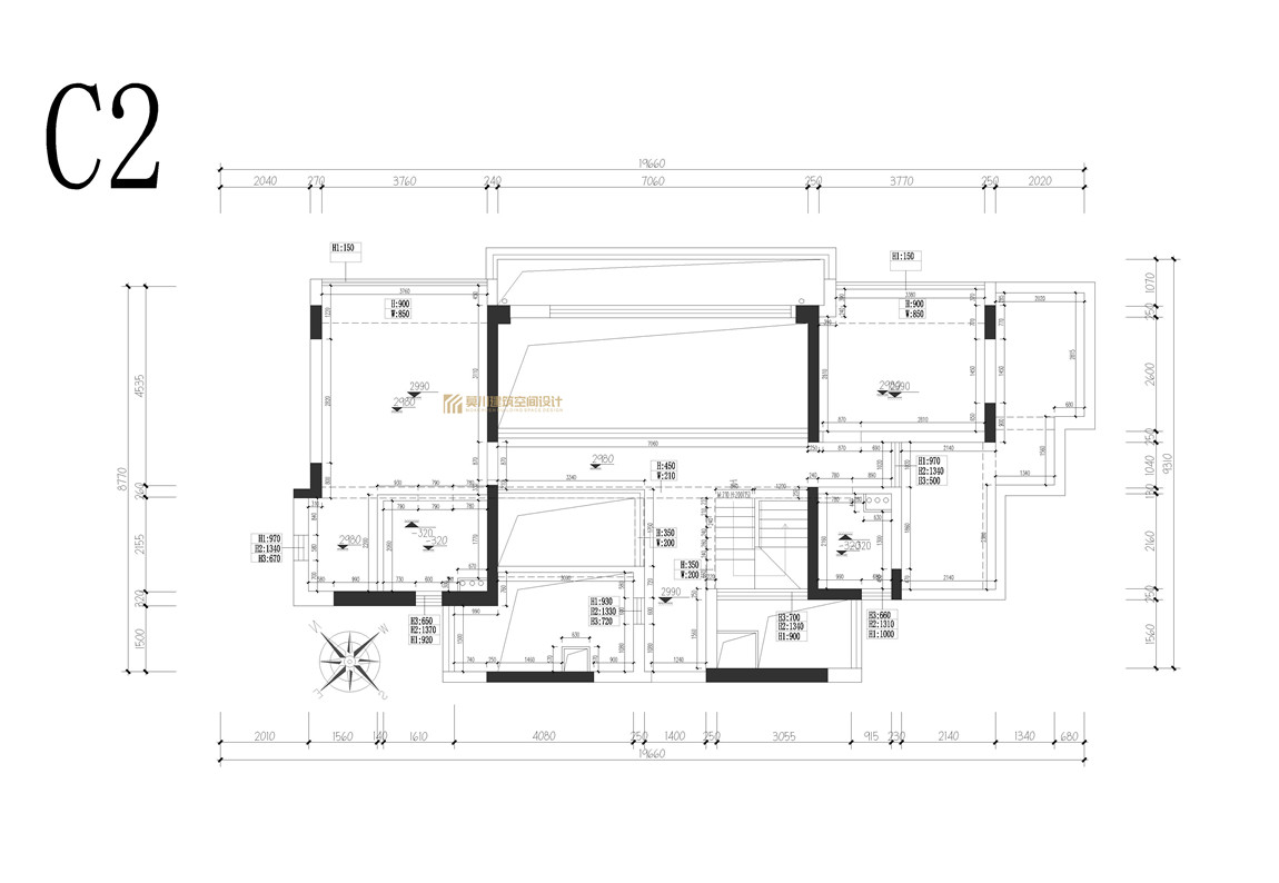
項目地址:港鐵天頌
戶型: 復式
裝修風格: 現代簡約
項目面積: 286㎡
設計費:¥114400
施工費:¥514800






















0755-83333299
莫川裝飾集團總部 :南山區華潤前海大廈A座23層
深圳福田設計院 :福田區卓越世紀中心4號樓506-507室
莫川蛇口設計院 :南山區蛇口招商局廣場24樓EF
深圳龍華設計院 :龍華區安宏基天曜廣場1棟A座12層E
深圳深灣設計院 :南山區后海片區卓越后海中心2509-2510
深圳寶安設計院 :深圳市寶安區前海科興科學園1棟806
莫川香港設計院 :香港中環皇后大道中16-18號新世界大廈14層
莫川主材定制展廳:南山區高新北二道16號清溢光電大廈4樓
Copyright@ 2015-2017 深圳市莫川建筑空間設計有限公司 版權所有 網站地圖 粵ICP備17082150號 粵公網安備 44030402000770號