設計亮點:
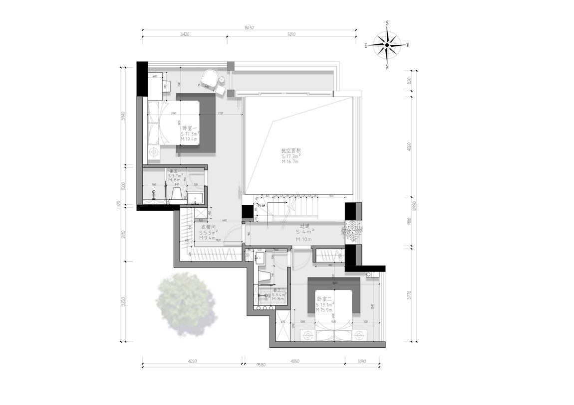
一樓為開放空間,一進來整體的視覺感無限放大,樓梯位置采用跳色的大理石,延伸踏步的設計手法讓樓梯多功能化(實用,裝飾),半開放式書房,增加客廳的透透感,餐廚結合從視覺上使用上都擴大了空間感,衛生間墻體結合玻璃磚解決衛生間無采光問題,
中間使用多層次的藝術天花,層層疊疊,拉高層高的視覺。二樓主臥床頭背景利用不同的材質結合,榻榻米床鋪弱化層高低問題,采用灰色的玻璃,讓空調透亮的同時也增加一絲隱蔽感,次臥采用簡潔大氣的木飾面跟硬包結合,提升空間舒適感。
項目地址:瑧灣匯
戶型: 復式
裝修風格: 現代簡約
項目面積: 178㎡
設計費:¥71200
施工費:¥320400

































0755-83333299
莫川裝飾集團總部 :南山區華潤前海大廈A座23層
深圳福田設計院 :福田區卓越世紀中心4號樓506-507室
莫川蛇口設計院 :南山區蛇口招商局廣場24樓EF
深圳龍華設計院 :龍華區安宏基天曜廣場1棟A座12層E
深圳深灣設計院 :南山區后海片區卓越后海中心2509-2510
深圳寶安設計院 :深圳市寶安區前??婆d科學園1棟806
莫川香港設計院 :香港中環皇后大道中16-18號新世界大廈14層
莫川主材定制展廳:南山區高新北二道16號清溢光電大廈4樓
Copyright@ 2015-2017 深圳市莫川建筑空間設計有限公司 版權所有 網站地圖 粵ICP備17082150號 粵公網安備 44030402000770號