
項目地址:廣東省深圳市寶安區
戶型: 三室
裝修風格: 北歐風格
項目面積: 89㎡
設計費:¥30000
施工費:¥133500
1. 基本信息
項目地址:廣東省深圳市寶安區
戶型: 3室1廳1廚1衛
裝修風格:新中式風格
項目面積:89平
2. 預 算
設計費:¥30000
施工費:¥133500(半包)
3. 設計說明
設計來源于米蘭設計展的簡約時尚風,運用色彩與結構營造出大氣的氛圍,讓空間與空間聯動。
暖色系融入灰色度讓整體空間寧靜而富有高級感,在體驗的過程中,能的到空間對于主人翁的尊重感,
升華空間對話,讓建筑與人之間擁有另一翻氛圍,燈光,色彩,
占據主導地位讓裝飾與實用形成協調統一的建筑空間。
4. 設計亮點
1.原始戶型廚房區域較小。
(解決方法:方案后打通原生活陽臺區域讓廚房進一步擴充)
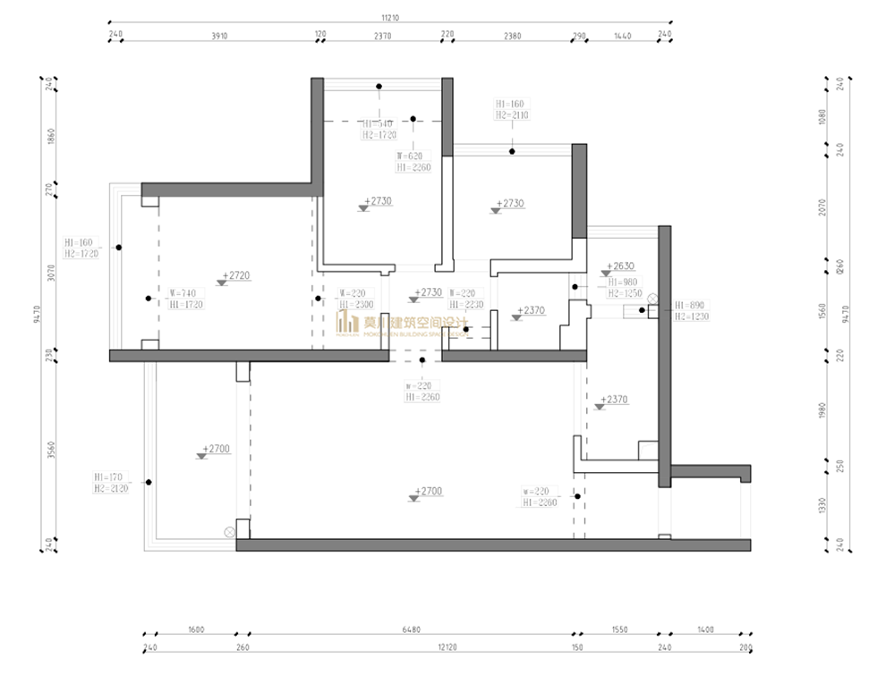
[原始結構圖]

[平面布置圖]

5. 區域空間
[客餐廳]

[主臥]

[次臥]

[書房]

[玄關]

[玄關]

0755-83333299
莫川裝飾集團總部 :南山區華潤前海大廈A座23層
深圳福田設計院 :福田區卓越世紀中心4號樓506-507室
莫川蛇口設計院 :南山區蛇口招商局廣場24樓EF
深圳龍華設計院 :龍華區安宏基天曜廣場1棟A座12層E
深圳深灣設計院 :南山區后海片區卓越后海中心2509-2510
深圳寶安設計院 :深圳市寶安區前海科興科學園1棟806
莫川香港設計院 :香港中環皇后大道中16-18號新世界大廈14層
莫川主材定制展廳:南山區高新北二道16號清溢光電大廈4樓
Copyright@ 2015-2017 深圳市莫川建筑空間設計有限公司 版權所有 網站地圖 粵ICP備17082150號 粵公網安備 44030402000770號