(深圳莫川裝飾原創作品 http://www.guoshibiao.cn)
地理位置
周邊環境
現場照片
原始戶型分析
戶型優點:
1.戶型方正
2.通風較良好
3.空間較多
4.區域劃分明顯。
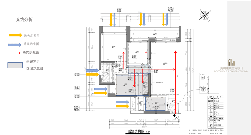
戶型缺點:
1.入戶玄關空間利用率不高
2.鞋柜儲物玄關影響較大
3.光線與采風單一
4.廚 房空間較局促
5.冰箱位置擺放很關鍵
6.主臥衣柜收納不合理
7.整體儲物空間不足
光線分析:
戶型方案:
天鵝湖三期現進行樓盤活動,咨詢即可獲取多份完整設計方案
風格示意圖:
3D設計展示


Copyright@ 2015-2017 深圳市莫川建筑空間設計有限公司 版權所有 網站地圖 粵ICP備17082150號 粵公網安備 44030402000770號