業主需求:
業主都是年輕人,有極高的審美與對生活品質的追求,喜歡古銅的點綴,材質上的精益求精,很配合設計落地,平日工作檔期很忙,就希望回到家是舒適溫馨的港灣,有歸屬感。
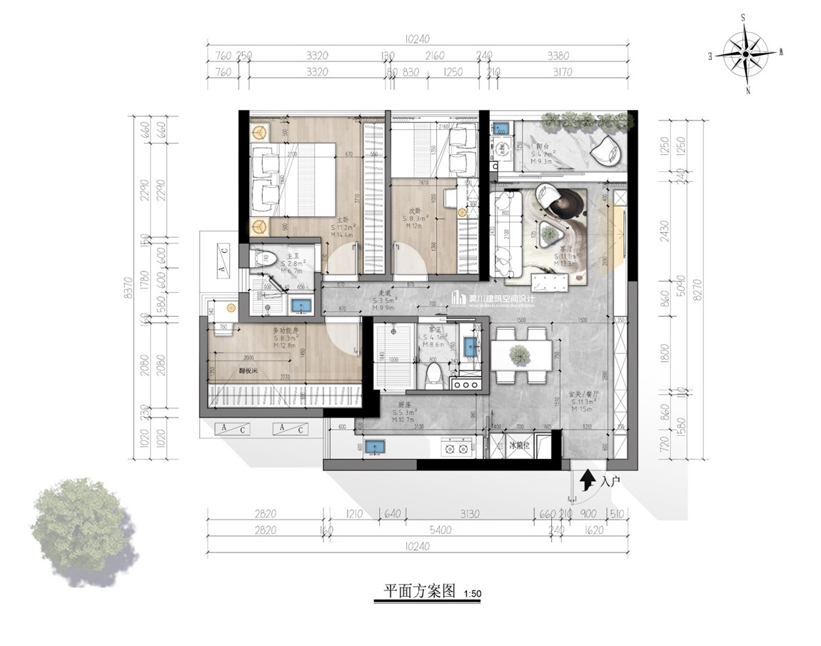
設計亮點:
廚房,陽臺的改造,冰箱位的重置,客餐廳的一體性,背景墻更加完整連貫,美觀的同時,又保證了海量儲物。
項目地址:金地名津
戶型: 三室
裝修風格: 現代簡約
項目面積: 87㎡
設計費:¥34800
施工費:¥156600









0755-83333299
莫川裝飾集團總部 :南山區華潤前海大廈A座23層
深圳福田設計院 :福田區卓越世紀中心4號樓506-507室
莫川蛇口設計院 :南山區蛇口招商局廣場24樓EF
深圳龍華設計院 :龍華區安宏基天曜廣場1棟A座12層E
深圳深灣設計院 :南山區后海片區卓越后海中心2509-2510
深圳寶安設計院 :深圳市寶安區前海科興科學園1棟806
莫川香港設計院 :香港中環皇后大道中16-18號新世界大廈14層
莫川主材定制展廳:南山區高新北二道16號清溢光電大廈4樓
Copyright@ 2015-2017 深圳市莫川建筑空間設計有限公司 版權所有 網站地圖 粵ICP備17082150號 粵公網安備 44030402000770號