設計需求:
1.常駐人口:女主+哥哥嫂子+ 母親+男孩
2.現代風格,溫馨,簡約,舒適,實用為主。
3.需要4房----主人房/長輩房/次臥/兒童房(長輩住一樓)成品床
4.需要配置電梯,餐邊柜(水吧),不考慮酒柜。采用中央空調,可考慮配套實用的智能家居。
5.客廳采用瓷磚/臥室木地板 。
6.空間合理利用,注重收納空間。
項目地址:帝景臺
戶型: 四室及以上
裝修風格: 現代簡約
項目面積: 160㎡
設計費:¥64000
施工費:¥288000
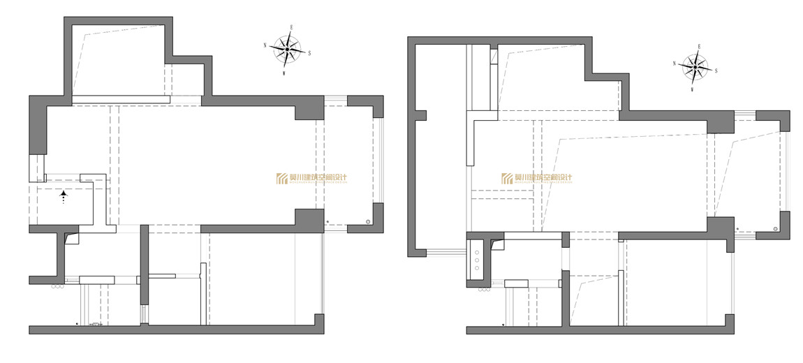
一二層原始戶型圖
一層平面方案
二層平面方案
客餐廳

電梯間
主臥+衣帽間

男孩房
長輩房
衛生間


0755-83333299
莫川裝飾集團總部 :南山區華潤前海大廈A座23層
深圳福田設計院 :福田區卓越世紀中心4號樓506-507室
莫川蛇口設計院 :南山區蛇口招商局廣場24樓EF
深圳龍華設計院 :龍華區安宏基天曜廣場1棟A座12層E
深圳深灣設計院 :南山區后海片區卓越后海中心2509-2510
深圳寶安設計院 :深圳市寶安區前海科興科學園1棟806
莫川香港設計院 :香港中環皇后大道中16-18號新世界大廈14層
莫川主材定制展廳:南山區高新北二道16號清溢光電大廈4樓
Copyright@ 2015-2017 深圳市莫川建筑空間設計有限公司 版權所有 網站地圖 粵ICP備17082150號 粵公網安備 44030402000770號