“春江潮水連海平,海上明月共潮生”。整體的設計貫徹對 “城市特性” 與 “環境特性” 的理解,尋找建筑與自然山海的默契,迭新著人與自然最融洽的尺度。
破浪而出、凝于永恒,海水,于此成為一個時空的藝術容器,以“水為心境”,海的雄渾浩渺和不羈奔放在空間的點、線、面中沉淀發酵。
弧形過道,光線低調且溫柔的介入,質樸的肌理隨光而動,人們在城市喧鬧的轉身之處,開啟一場山海間的藝術之旅。
項目地址:金域藍灣
戶型: 三室
裝修風格: 現代簡約
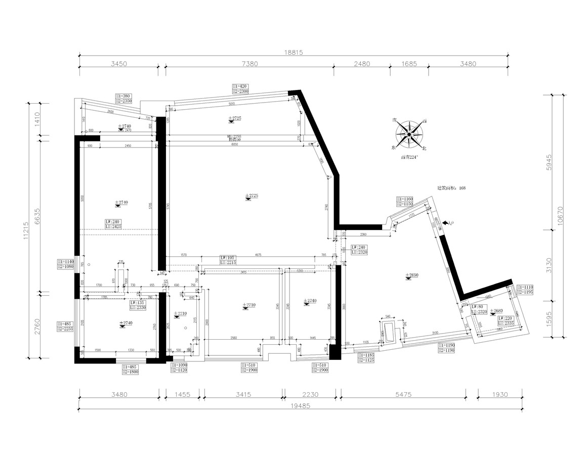
項目面積: 168㎡
設計費:¥67200
施工費:¥
平面方案
效果圖








0755-83333299
莫川裝飾集團總部 :南山區華潤前海大廈A座23層
深圳福田設計院 :福田區卓越世紀中心4號樓506-507室
莫川蛇口設計院 :南山區蛇口招商局廣場24樓EF
深圳龍華設計院 :龍華區安宏基天曜廣場1棟A座12層E
深圳深灣設計院 :南山區后海片區卓越后海中心2509-2510
深圳寶安設計院 :深圳市寶安區前海科興科學園1棟806
莫川香港設計院 :香港中環皇后大道中16-18號新世界大廈14層
莫川主材定制展廳:南山區高新北二道16號清溢光電大廈4樓
Copyright@ 2015-2017 深圳市莫川建筑空間設計有限公司 版權所有 網站地圖 粵ICP備17082150號 粵公網安備 44030402000770號