設計主題:則見風物
設計亮點:
全房保持大的基調是極簡的素色,但是通過計算黃金比例的墻體分隔切線保證空間的序列感,,木紋和石材兩種不同屬性不同紋理的材質碰撞拉伸了整體的質感。在里面設計中大量采取了內推和視覺眼神,餐廳收納柜為了使得空間延伸感特別使用了發光背板,在視覺上得到較大的眼神,電視柜使用黑色煙熏木紋顏色的高級感打破了收納柜的大面積逼近感,開口處內推了18mm 一進一退 空間完美得到橫向上的延申.
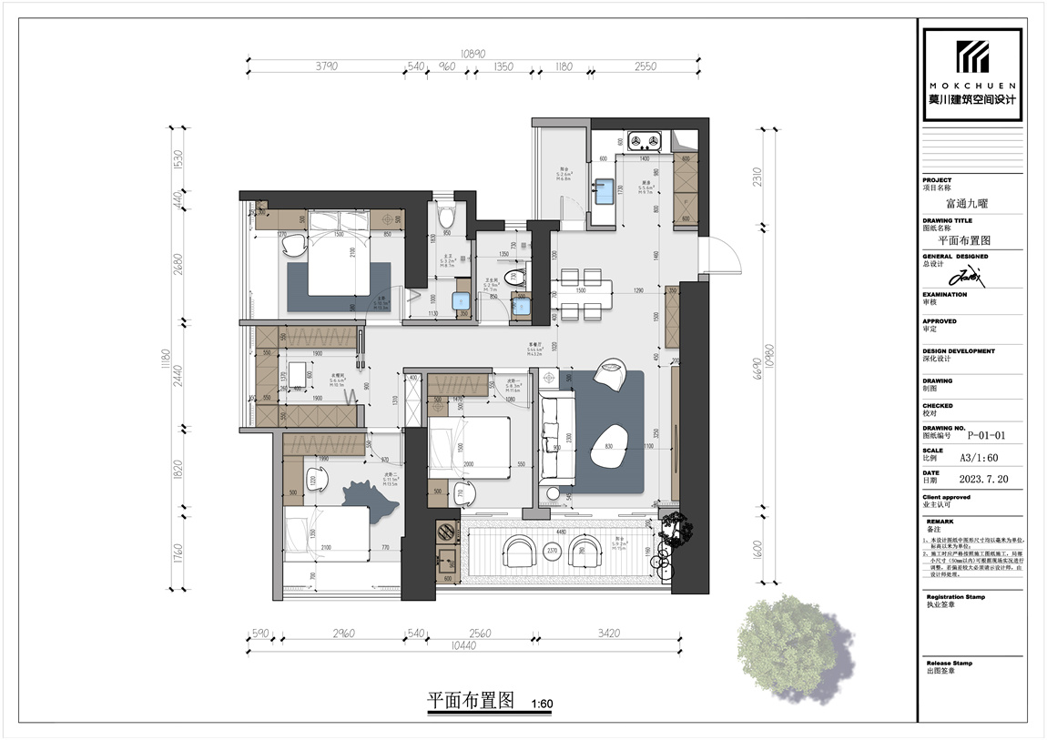
項目地址:富通九曜公館
戶型: 四室及以上
裝修風格: 法式
項目面積: 109㎡
設計費:¥40000
施工費:¥500000















0755-83333299
莫川裝飾集團總部 :南山區華潤前海大廈A座23層
深圳福田設計院 :福田區卓越世紀中心4號樓506-507室
莫川蛇口設計院 :南山區蛇口招商局廣場24樓EF
深圳龍華設計院 :龍華區安宏基天曜廣場1棟A座12層E
深圳深灣設計院 :南山區后海片區卓越后海中心2509-2510
深圳寶安設計院 :深圳市寶安區前海科興科學園1棟806
莫川香港設計院 :香港中環皇后大道中16-18號新世界大廈14層
莫川主材定制展廳:南山區高新北二道16號清溢光電大廈4樓
Copyright@ 2015-2017 深圳市莫川建筑空間設計有限公司 版權所有 網站地圖 粵ICP備17082150號 粵公網安備 44030402000770號