當我們買到房子的第一步想必就是裝修了,那要如何為裝修出謀劃策呢?是自裝還是請設計師?內心的OS可能還是這樣的:朋友推薦的,要不簡單搞一下!又或者大多數顏值青年是這樣想的:我要美美的INS風,顏值即正義!
然而這里我想說的是,裝修最重要的就是收納,那么全屋定制才真正的秀兒,才是真正屬于的自己的家裝設計。
很重要但是我們在裝修過程中最容易跑偏的點:空間上的定義!什么是‘空間’?對于空間,我們要如何充分利用,或者如何加以利用?
為啥空間重要?為什么我們要做精裝室內設計呢?還不是房子貴!
那么我們列舉一些未經優化的戶型存在的空間問題
這是我買房前看到的...心里那個美的呀
這是我買房后拿到的...
然而這還不是重點,可以拿個墻紙裝飾一下,
這是樣板房的直接植入,看起來也是美美的,可總感覺少了點什么嗎?
仔細瞧瞧,再仔細瞧瞧,原來是沒有衣柜。
再來看看放了衣柜的次臥
略顯局促...
看看廚房
臺面嚴重不足,再加上大冰箱的放置,基本沒有更多可行動自如的空間了。
看看衛生間,浴室太小,不能做到干濕隔斷。
再看看玄關門邊尺寸,基本不足35公分,無法做出正常季度的鞋柜,收納實在大打折扣。
我們總希望有個干凈簡單整潔的家。像這樣↓
然而現實是這樣的↓
赤條條的嚴重的收納不足,設計存在不合理。
那么現在很清楚,充分利用室內空間,不要再讓自己的和家人生活在夾縫中。
而房子裝修不是面子工程,內的思考才是真正的設計,室內空間設計不是改墻這么簡單,是包括墻體在內的所有物件與使用者之間關系的設計。
現在讓我們切入重點,設計的第一步:人
家庭成員結構決定了我們對空間的需求。往往與設計師溝通的第一部就是描述家庭成員的狀況。獨身,二人世界,三口之家,四代同堂,不同的成員結構對空間的要求各不相同,但歸根結底,獨立空間與開放空間的關系之間的處理。
常見的戶型有:三室兩廳,四室兩廳,大平奢享戶型。
而大戶型往往有足夠的的空間布局創意,中小型戶型則更需要精打細算,復合利用空間。
三大功能:空間玄關/廚房/衛生間
廳房空間:客廳/次臥/走道
臥室空間:主臥/次臥/客臥
其他空間:書房/多功能房/衣帽間/陽臺等等
玄關:戶外與戶內的過渡,需要大量的收納;
廚房:不論是否開放,重要的都是動線;
洗手間:功能的獨立與重疊很重要。
下面是不同的戶型對玄關要求上的差別:
像收納,風水,氣場,端景,玄關應該盡可能滿足鞋,寶寶外套,帽等物品的收納。設有臺面,在進門的時候可以放置手上物品;開放傘架,用來放置雨具;小抽屜用來放置鑰匙容易丟失的小件物品,鞋柜下方應該留著空放置長穿鞋,避免經常開柜門的麻煩,最好設置鏡面,出門前整理著裝。

單側玄關尺寸不夠置物,則向周圍空間借用。注意:
不可掏分戶來增加鞋柜空間,避免鄰里糾紛。
當入戶兩側尺寸,無法做出鞋柜時,入戶可作矮柜減少壓抑感,高柜廳房柜體連成一體,立面看起來整齊不突兀。

廚房設計在于動線的規劃,原則就是短,再大的廚房,如果動線太遠,使用起來也會諸多不便。所有櫥柜的布置方式都是在左邊五個基本型演化來的。
原本的廚房L型,臺面長度太短,假設需要放入冰箱,則臺面明顯不能滿足使用。
改造后的廚房利用了部分餐廳的區域,保證了廚房的臺面有足夠的長度,即使放入冰箱也夠;廚房與餐廳部分可增設窗戶,引入公區的光線。
原本的廚房尺寸過小,餐廳也不夠寬敞,進門處太小,無法滿足基本的鞋柜功能。
廚房收納的利用方式:
抽屜收納,商柜收納,臺面收納,邊角收納

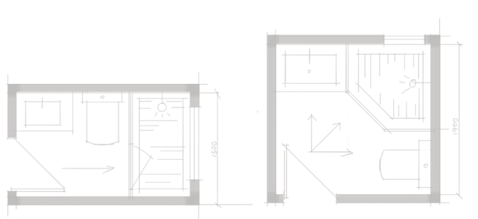
近些年逐漸火起來的分離式衛生間,可以洗浴,洗衣,如廁,洗漱四項同時使用,可以解決“早高峰”的問題,甚至更衣區可以連接衣帽間區域,洗澡后方便更衣。
雖然是非常人性化的設計,但是由于國情限制,目前國內的大部分戶型由于面積和承重墻的結構無法做出很理想的四分式分離衛生間。
不過,國內戶型通過優化也能達到部分分離的效果。
由于日本獨特的“泡澡”文化,浴缸可以說是必備的了。由于沐浴時長,分離就變成了剛需。
國內最常見衛生間的形式:一字型排列與鉆石型排列。由于沉降池的存在,所以大部分下的衛生間的其中一面墻是有承重結構,所以對改造有一定的困難。
盥洗區與濕區的分離,馬桶沒能分離出來。
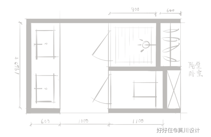
雖然尺寸不大,但是可以實現簡單的三分離
較大的尺寸的分離式展現,雙盆可以保證早上洗漱同時進行
這是同一尺寸下的不同布置,雖然洗衣機和烘干機沒有完全分離,不過問題不大,淋浴和馬桶還是可以分來。
如果空間實在有限,沒辦法做分離式,那么就需要把有限的尺寸內做得足夠充分,避免浪費,此種布局方式相對于傳統一字型來說有更長洗手臺可以使用,衛生間可以采用隱形門的方式減弱馬桶對門的問題
比如,不同風格的衛浴空間 ↑
接下來,臥室!
不可小瞧的臥室空間布置,不知道是否合適臥室的格局,已經被完全定式化了,不管公共空間的不知如何華麗,到了臥室空間,就是簡單的‘衣柜/床頭柜/床/床頭柜’一下排開的布局,雖然使用起來沒什么問題,但是根據不同尺寸的臥室空間來說還是有不一樣的布局方式,這樣才好看。
適合青少年,更多的收納,更靈活的布局。
面寬大3.6m可以將衣柜布置在正面,整墻柜的收納量更高
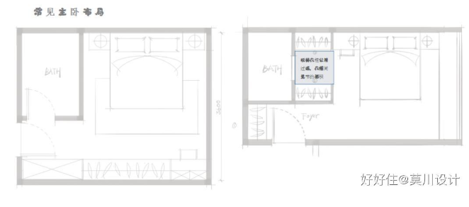
精裝戶型常見的戶型結構,主臥有內玄關,隱私更好,通風比L型衣帽間更理想。

深圳灣壹號T2-29戶型
大戶型主臥往往以套房的形式出現,寢區,書房區(會客)衛浴區,衣帽區為四必備的區域。
總結:我們充分利用空間原則是把原本浪費的空間重新整合,對交通的空間的重復利用,盡可能避免突起物對動線和視線的影響。平整的空間由于連貫性天然具有視覺放大的功能。空間設計的流程就是先通過觀察平面找到浪費區域,然后重新分配給合適的區域,這個過程有點像拼圖。
本次的講解只涉及到平面布局的一些基本思路,由于時間的關系,未能將收納系統進行展開講解,希望以后還能有機會再次分享。
Copyright@ 2015-2017 深圳市莫川建筑空間設計有限公司 版權所有 網站地圖 粵ICP備17082150號 粵公網安備 44030402000770號