地址:深圳市南山區華僑城片區中北部,相鄰僑香路
常見戶型:二居室、三居室、四居室、五居室
地處南山區僑香路,北臨北環大道,南靠深圳歡樂谷,東接天鵝湖,環境優美,交通便利,周邊配套設施完善,區內配套完備,配備高爾夫球場,及生活娛樂于一體。
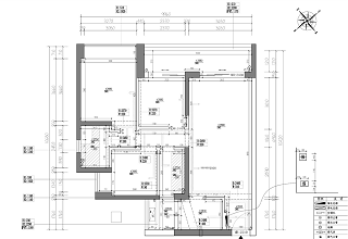
項目總用地面積為29321.82㎡,擬建總建筑面積為161186.07㎡,其中:住宅面積117334㎡,物業管理用房455㎡,架空層面積1,584.9㎡,擬建兩層地下室面積約41812.17㎡,安排設備用房和停車位及人防用房,提供停車位867輛。小區共由3棟高層住宅塔樓組成。

相關戶型解析:
港式輕奢。金屬、皮革、線條,實色漆套色,革新了色彩的搭配模式。
我想生活無需假裝,時尚要有態度,輕奢,一種讓人有一定壓力,
但又追求品質精致生活的狀態,至精至雅,時尚大方。
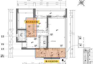
多維度戶型分析-天鵝湖三期117㎡戶型缺點:
1.廚房過小,臺面和儲物空間不足。
2.主臥套房過道使用舒適度不高。
優點:主動線分明,房屋結構相對方正。
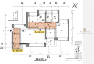
多維度戶型分析-天鵝湖三期107㎡平面規劃圖解方案
缺點有1.玄關面積過小,缺少儲物。
2.廚房過小,臺面和儲物空間不足。
3.客廳飄窗如何利用。
優點:主動線分明,房屋結構相對方正。
簡約設計-天鵝湖三期戶型分析示意圖解
天鵝湖三期戶型優點:戶型方正、戶型整體采光良好原始動靜分區合理。
戶型缺點:入戶過窄,無鞋柜擺放位置、
廚房面積操作空間不夠、主臥門與主衛門對門
程曉峰
鄺爻年
肖志桐
鄺爻年
鄺爻年
程曉峰
195-8642-6897 吳女士
南山區蛇口招商局廣場24EF
0755-83333299
莫川裝飾集團總部 :南山區華潤前海大廈A座23層
深圳福田設計院 :福田區卓越世紀中心4號樓506-507室
莫川蛇口設計院 :南山區蛇口招商局廣場24樓EF
深圳龍華設計院 :龍華區安宏基天曜廣場1棟A座12層E
深圳深灣設計院 :南山區后海片區卓越后海中心2509-2510
深圳寶安設計院 :深圳市寶安區前海科興科學園1棟806
莫川香港設計院 :香港中環皇后大道中16-18號新世界大廈14層
莫川主材定制展廳:南山區高新北二道16號清溢光電大廈4樓
Copyright@ 2015-2017 深圳市莫川建筑空間設計有限公司 版權所有 網站地圖 粵ICP備17082150號 粵公網安備 44030402000770號